Власти Калининграда определили 6 территорий, претендующих на благоустройство по программе «Комфортная городская среда» в 2021 году (в
Сквер на Краснооктябрьской
Сквер у КМРК на улице Краснооктябрьской лидировал до предпоследнего дня голосования, пока результаты не начали стремительно меняться то ли
О благоустройстве этого сквера администрация Калининграда задумалась несколько лет назад, когда в мэрию обратились архитекторы из бюро «Никор проект». Как утверждала летом 2017 года начальник отдела городской эстетики Наталья Лелет, архитекторам надоело смотреть на пустырь около своего офиса, и они на добровольных началах разработали проект возможного благоустройства и подарили его городу. Идеи обустройства территории городские чиновники вместе решили обсудить с горожанами, общественниками и студентами. В итоге концепцию разрабатывала целая команда во главе с архитектором Антоном Глушковым при участии социолога и лидера группы «Право на город» Анны Алимпиевой. И Глушков, и Алимпиева были на встрече в июне 2017 года и ещё тогда высказали свои замечания к предлагаемому проекту. Теперь же они разработали собственное решение, в общих чертах схожее с первоначальным.






Например, здесь так же предлагается заброшенный фонтан превратить в амфитеатр (эта идея изначально, кажется, понравилась абсолютно всем), но более детально продуманы пешеходные маршруты и озеленение. Общий план будущего сквера
По границе планируемого сквера пролегает велодорожка, с юга и востока предлагается оборудовать парковочные места. Предусмотрены велопарковка и туалеты. Всё благоустройство рассчитано в том числе и на маломобильных граждан.
Отдельного внимания заслуживает фонтан. Как уже говорилось, стенки чаши должны превратиться в амфитеатр, а внизу останется фонтан с валунами и искусственным туманом. Изучить концепцию до последнего куста сирени можно на сайте
«Этот участок в таком виде не может уже существовать в центре города. Я думаю, что мы в этом году
Парковая зона Яналова — Каштановая аллея
Об этом парке, который местные жители называют просто Шервудом, мы писали год назад (тогда эта территория тоже участвовала в голосовании, но в число победителей не вошла). С тех пор ничего не изменилось — парковая зона
Здесь предлагается обустроить парковую территорию с пешеходными и велодорожками, полноценной площадкой для выгула и дрессировки собак, летним театром, детскими, спортивными, баскетбольной и волейбольной площадками.
Многое из этого существует и сейчас, однако нуждается в обновлении, что, по сути, и предложили сделать проектировщики. Правда, при благоустройстве, очевидно, пострадает обильная растительность парка — для строительства всех этих площадок и дорожек часть деревьев, скорее всего, уничтожат, что не устраивает калининградских активистов.
По словам Силанова, 2019 году в той стороне планируется ремонтировать тротуары. «От Каштановой до Яналова, конечно, пройти просто невозможно. Ну и сам комплекс — детская площадка, сцена — нуждается в приведении в порядок», — подчеркнул он.
Территория у Школьного пруда
Концепция благоустройства берегов Школьного пруда, расположенного в конце улицы Красной, также была разработана ещё в 2015 году. Денег на её реализацию не было, так что проект презентовали и отложили. У Школьного пруда весьма специфическое расположение — с одной стороны он граничит с ЛЭП, с другой — с жилыми домами и школой, с третьей — с полузаброшенной воинской частью. Тем удивительнее резкий скачок этой территории в







Концепцией предлагается по периметру пруда обустроить набережную с пешеходными дорожками, велодорожками, скамейками, урнами, фонарями, детской площадкой, оборудованными спусками к воде и парковками — как для автомобилей, так и для велосипедов. С западной части пруда авторы концепции хотят оборудовать закрытую площадку для выгула собак, с восточной — ближе к ул. Красной — сквер «Школьный». Набережную предполагается мостить плиткой и брусчаткой.
Там, где обустраиваемая территория окружена заборами (а таких мест довольно много), архитекторы считают нужным высадить живую изгородь в два уровня. Детскую площадку планируется совместить со взрослым спортивным уголком. Предусмотрено и дополнительное озеленение — авторы предлагают высадить сирень, сосны, туи и можжевельник.
Сквер на Алданской
Сквер на берегу ручья Лесного в микрорайоне им. А. Космодемьянского уже частично благоустроен — в 2016 году здесь даже установили домик для утки. А также обустроили дорожки, площадки, поставили урны и лавочки. Сейчас в голосовании речь идёт уже о втором этапе благоустройства. Основной идеей при разработке концепции стало «создание физкультурного сквера с учетом сохранения естественного природного ландшафта», утверждается на сайте администрации. Полное благоустройство подразумевает большую спортивную зону с открытым стадионом для футбола и баскетбола, беговой дорожкой, площадками для воркаута и паркура.






Авторы концепции утверждают, что при проектировании дорожек учли существующую
Бульвар Иванихиной — Толстикова
Проект благоустройства бульвара Иванихиной — Толстиковой в Московском районе Калининграда был разработан пару лет назад. Это общая территория между многоквартирными домами за «Викторией» на Батальной (бывший «Седьмой континент»). Архитекторы предлагают превратить существующий пустырь в полноценную пешеходную зону, которая свяжет Иванихиной и Толстикова.
Также авторы концепции хотят скорректировать
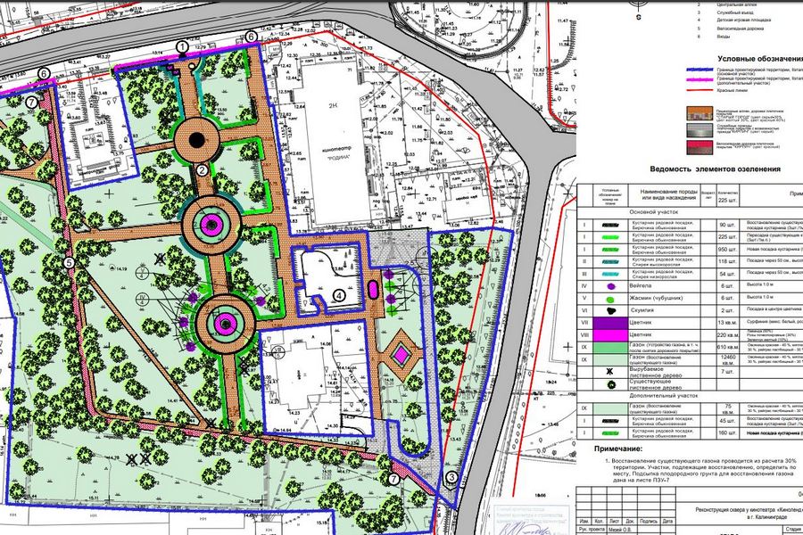
Сквер на Киевской у «Киноленда»
Самый загадочный сквер. Его частично благоустроили ещё в 2015 году — оформили входную группу, замостили плиткой, установили бетонные то ли клумбы, то ли тумбы, а также лавочки, урны и прочие удовольствия. Сейчас в голосовании участвует уже
На сайте администрации в качестве концепции выложен план озеленения, из которого можно узнать, что в сквере планируется выложить плиткой дорожки, посадить деревья, кусты и цветы, поставить лавочки, урны, оборудовать велодорожку и детскую площадку. При всём при этом сквер на Киевской в
Второй тур голосования пройдёт 26 февраля с 8:30 до 19:30 в трёх МФЦ Калининграда: на площади Победы, Челнокова, 11, и Инженерной, 3. Голосовать могут жители Калининграда старше 14 лет, с собой нужно взять паспорт. Подвести итоги власти намерены 27 февраля.
Текст — Татьяна Зиберова, фото — Виталий Невар, Алексей Милованов, скриншоты сервиса «Яндекс. Панорамы», концепции и проекты — сайт администрации Калининграда
© 2003-2025