В поселке Лесной на Куршской косе на месте турбазы «Балтика» планируют возвести пятиэтажную гостиницу. Информация об общественных обсуждениях проектной документации размещена на сайте муниципалитета.
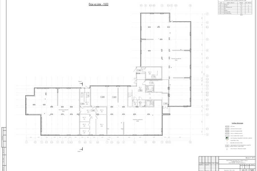
На обсуждения вынесена проектная документация по объекту государственной экологической экспертизы «Реконструкция базы отдыха под гостиницу по адресу: Калининградская обл., р-н Зеленоградский, п. Лесной, ул. Лесная, д. 6», включая материалы оценки воздействия на окружающую среду. Согласно материалам, объект капитального строительства — Г-образная пятиэтажная гостиница — будет вмещать в себя 49 апартаментов, в том числе четыре студии, 29 однокомнатных, 13 двухкомнатных апартаментов и три пентхауса. Высота здания будет составлять 19,9 м, общая площадь — 6353,11 кв. м. На территории гостиницы планируется парковка на 18 машино-мест.



Иллюстрации - проектная документация
Земельный участок с кадастровым номером 39:05:020301:150 находится в аренде у ООО «СЗ «Флагман», который и является заказчиком проекта. Данный земельный участок в водоохранной зоне, подзоне приаэродромной территории аэропорта Храброво, а также входит в особо охраняемую природную территорию федерального значения Национального парка «Куршская коса».
© 2003-2026