Сколько людей, столько и мнений — с этих строк хотелось начать данную статью, в которой попытаемся поговорить о том, почему мы начинаем наш ремонт в новостройке с разрушения каких-то стен. Поможет нам в этом компания ООО «Делорад», которая занимается активной застройкой в городе Гурьевске по адресу: ул. Калининградское шоссе, 10А.
Однозначного ответа на данный вопрос нет, но общие тенденции мы попробуем обсудить.
1. Сейчас стало модно совмещать кухню и зал (кухня-столовая). Вы спросите, почему же при проектировании квартиры это не сделал застройщик сразу? Ответ кроется в том, что при наличии газового оборудования комната и кухня должна быть разделены по техтребованиям. Да еще вдобавок ко всему застройщику проще построить по старинке и не вносить каких-то новшеств, которые могут в дальнейшем затормозить процесс сдачи дома в эксплуатацию, к тому же совмещенные комнаты — это на любителя, многим достаточно стандартных квартир.
2. Совмещаем ванну и туалет. Еще одна тенденция современного рынка. В данной реконструкции свои плюсы и минусы. Совмещенный санузел обладает объемом, хорошей площадью, красивым дизайном и т.д, но с точки зрения функционала эта планировка подходит для семей до 3-х человек, так в утренние часы пик в семье, скажем, из 4-х ,5-ти человек при совмещенном санузле образуется очередь из спешащих на работу, в школу и садик. Поэтому для них необходим второй санузел — это практичность.
3. Совмещаем лоджию и комнату. В каждом доме будут такие умельцы, которые площадь лоджии добавили к кухне или комнате. Но все мы забываем про то, что люди, работающие у застройщика, не дураки. При проектировании лоджия считается холодным помещением, и туда устанавливаются стеклопакеты с одинарным стеклом и малым количеством камер, а еще полы и стены лоджии не утеплены, на этом на всем застройщик экономит свои деньги. Так что эти факторы вы должны учитывать при желании увеличить площадь квартиры. Результатом этих недоработок может быть неправильная работа вентиляции, которая рассчитана на определённый объем воздуха, вечно «плачущие» окна, а также некомфортная температура в комнате и большие счета за газ.
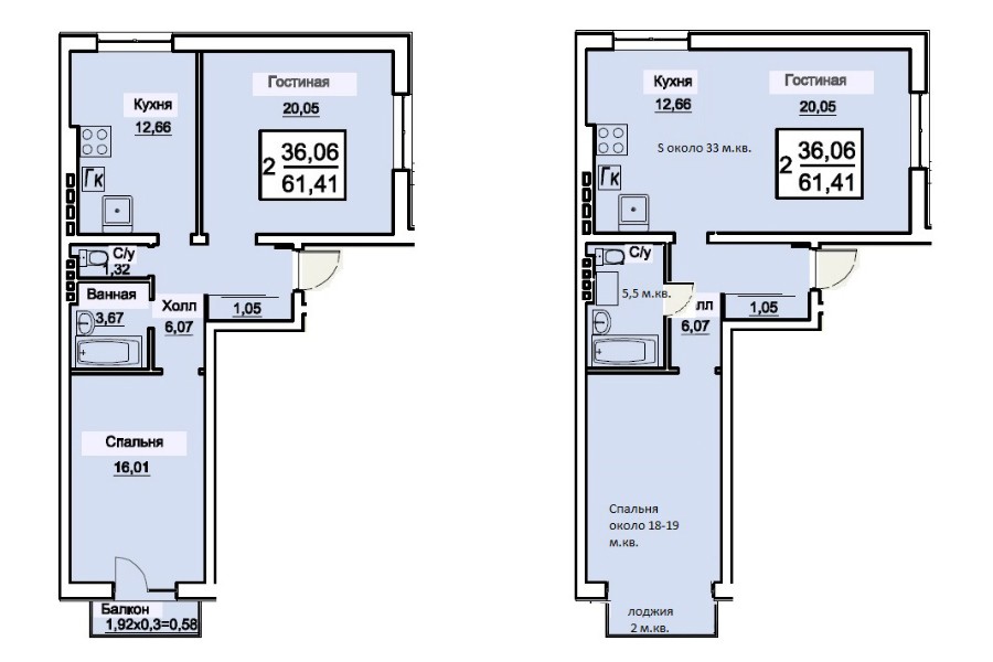
Пару вариантов квартир мы привели ниже. Там можно посмотреть, как меняется стандартная планировка на новую, с переносом каких-то не несущих перегородок. Несущие и самонесущие стены сносить нельзя!
Внимание, с проектной документацией можно ознакомиться по адресу: г. Калининград ул. Тельмана, 48 Б, офис 31 или на сайте. 
Застройщик ООО «Делорад».
© 2003-2026