Сегодня рынок недвижимости предлагает широкий ассортимент квартир с различными планировочными решениями. Подходящий вариант застройщики предложат как студенту, так и большой семье с детьми. При этом квартиры в достаточно привлекательных, на первый взгляд, ЖК могут не продаваться, если планировки там не приспособлены для жизни. Холдинг «КалининградСтройИнвест» уделяет разработке планировочных решений особое внимание. Основная задача застройщика — по-максимуму наполнить даже минимальное количество квадратных метров полезным функционалом. Обзор нескольких интересных планировок КСИ — в нашем материале.
Однокомнатная квартира в ЖК «Клевер»


Это одна из популярных планировок однокомнатных квартир компании, предназначенных для побережья. На 38 — 44 м² смогут с комфортом проживать и вести быт до четырёх взрослых человек. Понимая, что это в большинстве случаев квартира выходного дня или объект для сдачи в аренду, застройщик немного сократил площадь прихожей в пользу более просторной кухни-гостиной.
Один из существенных плюсов — полноценный санузел, в который легко встраивается полноразмерная ванная, и ещё остаётся место для комфортного размещения стиральной машины и других необходимых атрибутов.
Кухня-гостиная разделена на две функциональные зоны: для приготовления пищи и для отдыха — с раскладным диваном. Как отмечают представители застройщика, этот тип планировки раскупается одним из самых первых после старта продаж.
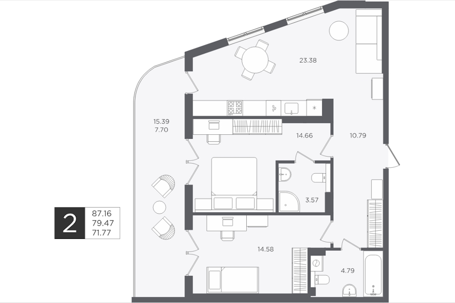
Двухкомнатная квартира в ЖК «Клевер»


Ещё одну интересную и необычную планировку в основном можно увидеть на последних этажах комплексов. Благодаря архитектурным решениям, выделяющим последний этаж во многих ЖК компании «КалининградСтройИнвест», в комнатах появляются французские балконы. Они дают квартире ещё больше солнечного света, воздуха и объёма.
При том, что общая площадь квартиры относительно небольшая (усреднённо — 61,65 м²), в ней уместится всё для комфортного проживания: большая кухня-гостиная, мастер-спальня со своим санузлом и максимально светлая угловая спальня.
Двухкомнатная квартира в ЖД «Палатиум»


Это шикарная видовая двухкомнатная квартира представлена в жилом доме «Палатиум» на первой береговой линии Балтийского моря. Его возводят на ул. Нахимова в Светлогорске. Большой балкон-терраса — весомый аргумент в пользу данной планировки. Причём выйти на него можно будет из всех комнат. Особенно впечатляющий вид на море откроется из кухни-гостиной.
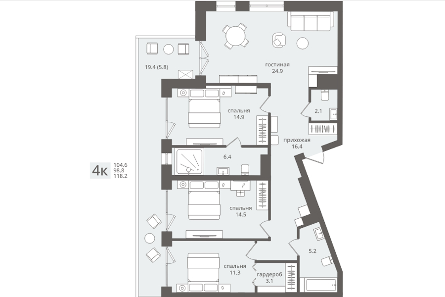
Трёхкомнатные апартаменты в комплексе «Панорама»


Эти просторные трёхкомнатные апартаменты появятся на первой береговой линии в самом центре города Пионерского. О главных преимуществах объекта доходчиво рассказывают цифры. Владельцы апартаментов станут счастливыми обладателями террасы площадью 20 м², кухни-гостиной площадью 24,9 м², трёх санузлов (один из которых — с окном — площадью 6,4 м²) и трёх полноценных спален. Эти апартаменты — потрясающая возможность обзавестись собственной резиденцией на берегу Балтийского моря.
Двухкомнатная квартира в ЖД «Шелест»


Эта квартира на ул. Песочной в Светлогорске отличается удобной конфигурацией комнат и угловым расположением относительно дома. Плюс планировки: просторная кухня-гостиная и два больших санузла (хозяйский — с окном). А ещё в этой двушке спальни правильной формы — получить гармоничный и стильный интерьер, способствующий расслаблению и комфортному отдыху, будет проще.
Двухкомнатная квартира в ЖК «История»


На «десерт» мы оставили эту необычную двухкомнатную квартиру на ул. Дадаева в Калининграде. Совершенно особенной её делает архитектурное решение — расположить балкон под 45° относительно дома. Но и это ещё не всё. В копилке преимуществ этого объекта: просторная кухня-гостиная, два санузла, гардеробная в прихожей, полноценные спальни и лоджия с выходом из кухни.
«Палатиум»: застройщик АО СЗ «Стрела», с проектной декларацией можно ознакомиться по ссылке
«Панорама»: застройщик АО СЗ «Артстрой», с проектной декларацией можно ознакомиться по ссылке
«Шелест»: застройщик ООО СЗ «Светлогорский», с проектной декларацией можно ознакомиться по ссылке
«Клевер» — дом 4: застройщик АО СЗ «Лидер» с проектной декларацией можно ознакомиться по ссылке
«Клевер» — дом 5: застройщик АО СЗ «Лидер» с проектной декларацией можно ознакомиться по ссылке.
«История»: застройщик АО СЗ «Инвест-Ком, с проектной декларацией можно ознакомиться по ссылке
Реклама. ЗАО «ЭКСПРЕСС-РИЭЛТ». ИНН 3906210066. Erid: 2VSb5yY9RBn
© 2003-2026