На Острове около стадиона планируют построить пятизвёздочный отель (фото)

На Острове около стадиона планируют построить пятизвёздочный отель (фото) На Острове около стадиона планируют построить пятизвёздочный отель (фото) На Острове около стадиона планируют построить пятизвёздочный отель (фото) На Острове около стадиона планируют построить пятизвёздочный отель (фото) На Острове около стадиона планируют построить пятизвёздочный отель (фото) На Острове около стадиона планируют построить пятизвёздочный отель (фото) На Острове около стадиона планируют построить пятизвёздочный отель (фото) На Острове около стадиона планируют построить пятизвёздочный отель (фото) На Острове около стадиона планируют построить пятизвёздочный отель (фото) На Острове около стадиона планируют построить пятизвёздочный отель (фото) На Острове около стадиона планируют построить пятизвёздочный отель (фото)
Все новости по теме: Строительство

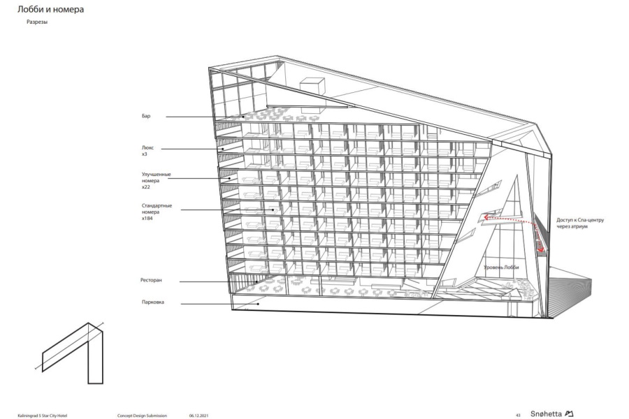
На Октябрьском острове в Калининграде между стадионом и Второй эстакадой планируют построить 12-этажную пятизвёздочную гостиницу. Проект отеля презентовали в понедельник, 31 января, на заседании областного градостроительного совета.

Отель планируют возвести рядом со строящимся театром оперы и балета. 12-этажное здание расположено на стилобате с парковкой на 34 машиноместа и включает в себя 209 номеров, спа-центр, ресторан, бар и конференц-центр. Общая площадь гостиницы — около 10 тысяч кв. метров.

«Входные зоны находятся выше уровня земли, в них можно попасть с севера на автомобиле или с юга пешком. Прибывающих гостей встречает сокровище гостиницы — впечатляющее лобби с атриумом высотой 36 м. Дневной свет, проникающий через фонарь, падает на центральный водный элемент, отражаясь на тяжелых каменных стенах. Функции гостиницы на уровне лобби доступны через грандиозный атриум, где пересекаются здания гостиницы и спа-центра. Зона атриума может использоваться для различных мероприятий, неформальных встреч, работы и отдыха, а также модных показов и концертов», — сказано в описании проекта.

Участники градостроительного совета одобрили архитектурную концепцию отеля. Архитектор Олег Копылов заявил, что такой объект украсит город. Советник губернатора Вячеслав Генне сказал, что он «двумя руками за» проект.

«Стильная, красивая форма. Безусловно этот проект надо согласовывать», — добавил архитектор Сергей Гулевский.

Изображения предоставлены пресс-службой правительства Калининградской области

Нашли ошибку? Cообщить об ошибке можно, выделив ее и нажав Ctrl+Enter

Самое читаемое:

[x]