«Тошнит от зефира»: в Пионерском планируют построить пятиэтажный отель у спуска к морю (фото)

Все новости по теме: Строительство

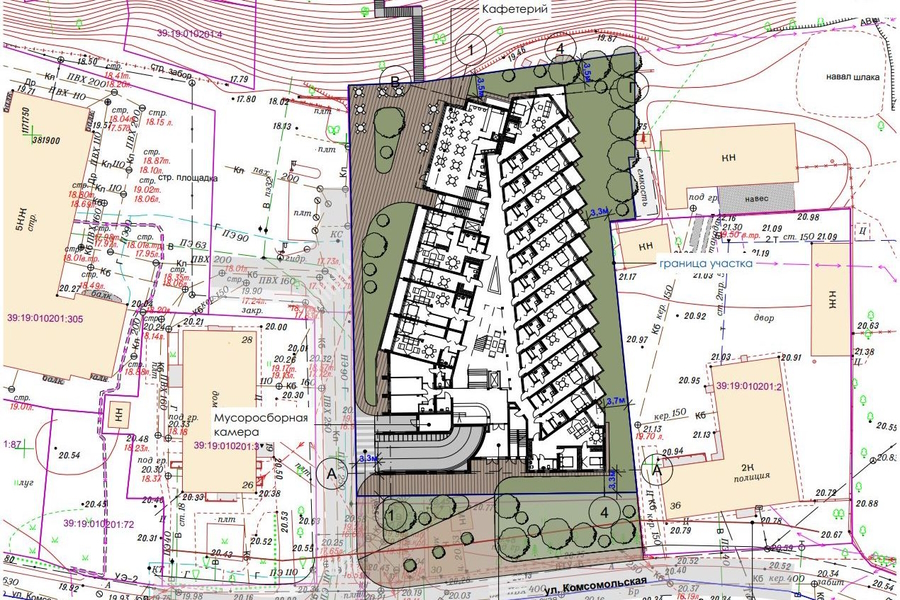
В Пионерском на первой линии планируют построить пятиэтажную гостиницу. Проект обсудили на прошедшем заседании градостроительного совета. Здание неправильной формы хотят расположить вплотную к склону у спуска на променад.

Участок площадью 3 тыс. кв. метров расположен на улице Комсомольской около отделения полиции и санатория и используется как парковка. Рядом расположен спуск на променад, который застройщик намерен сохранить в открытом доступе для жителей и гостей города.

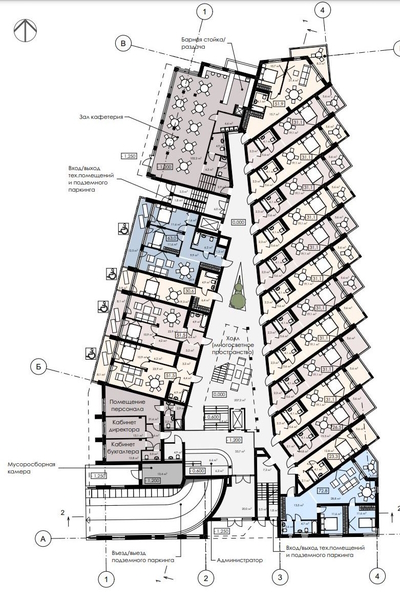
В пятиэтажной гостинице планируют обустроить 106 номеров. Также предусмотрены подземный паркинг на 25 автомобилей и 4 мотоцикла и зона отдыха на крыше. Общая площадь отеля — 10,85 тыс. кв. метров.

Здание неправильной формы спроектировано так, чтобы все номера были ориентированы в сторону моря, подчеркнул представлявший проект архитектор Игорь Идиатулин. На первом этаже расположен кафетерий открытого типа с летней площадкой у спуска.

«Учитывая ширину корпуса, было принято решение организовать атриум в центре здания гостиницы со световым фонарём в кровле, в котором располагаются открытая лестница и панорамный лифт», — рассказал Идиатулин. Во внешней отделке гостиницы использованы клинкерный кирпич, плитка, панели из композита и закалённое стекло на балконах.

Территорию вокруг здания застройщик планирует благоустроить, при этом парковочные места на территории не предусмотрены, что смутило представителя ГИБДД Романа Луценко, поинтересовавшегося, куда будут подъезжать автобусы с гостями. Идиатулин ответил, что это «городская гостиница» и парковка для автобусов ей не нужна, но предложил использовать в качестве таковой небольшой муниципальный участок между гостиницей и улицей.

Глава администрации Пионерского Леонид Шибаев напомнил, что улицу Комсомольскую планируют сделать односторонней в направлении с запада на восток (с этим не согласны жители города, организовавшие сбор подписей против изменения схемы движения — прим. «Нового Калининграда»). На полосе обратного движения будет оборудована велодорожка, то есть подъезжать к отелю придётся через неё. При этом, по словам Шибаева, оборудовать «карман» для автобусов вполне возможно.

«Проводили встречу с жителями и одно из предложений жителей, просьба была, что когда данная территория будет расстраиваться, жители очень попросили, чтобы у них при строительстве всех этих объектов — и соседи ваши будут строиться с западной стороны — не забирали возможность доступа к склону и возможность прогуливаться вдоль этого склона. Я хотел бы, чтобы это приняли во внимание», — добавил глава администрации.


Участникам градосовета проект в целом понравился. Советник губернатора Вячеслав Генне похвалил идею сделать атриум, но рекомендовал добавить «в конце этого треугольника выход на море». «Вы потеряете, наверное, два номера, но это будет эффектная вещь. Не на всю этажность, а хотя бы на два этажа. Получился бы такой променад внутри, который бы заканчивался видовой картинкой», — пояснил он.

Идею поддержал и развил архитектор Олег Васютин, высказавший «большое желание вытащить этот стеклянный клюв еще дальше»: «Консольно, еще как-то, чтобы не было, что здание выходит торцом к морю. Каким-то образом вытащить этот клюв. Это было бы просто шикарно».

За добавление «видового элемента» выступил и глава местного отделения Союза архитекторов Игорь Ли. Архитектор Олег Копылов сообщил, что атриум — «очень удобная вещь», но заметил, что «он несколько маловат».

«Делать на пять этажей какое-то длинное и очень узкое пространство, которое будет ещё съедено галереей... надо подумать. Если есть возможность, его надо расширять. Полметра-метр тоже имеют значение», — высказался он, предложив также сделать на одном из фасадов пятиэтажное окно, чтобы добавить света.

Копылов раскритиковал предложенные варианты фасадов, назвав их рыхлыми и неинтересными и сравнив с санаторием 60-70-х годов. «Несолидные фасады, совершенно отелю с атриумом они не соответствуют, — пояснил архитектор. — Я считаю, с фасадом надо поработать, он ещё не созрел».

Вячеслав Генне наоборот одобрил внешний облик гостиницы, заявив, что Пионерский «никогда в принципе не был избалован качественной архитектурой», а проблемы с подъездами и расположением зданий практически на склоне — это всё результаты «недальновидной градостроительной деятельности». По словам советника губернатора, у Идиатулина получился «современный красивый объект».

«Эта мимикрия под историю бесконечная в Пионерском уже зашкаливает. Эти фронтончики, арочки, которые за последнее время напроектировал Пичугин Алексей (бывший главный архитектор Пионерского — прим. „Нового Калининграда“), там уже тошнит от этого зефира», — сказал он.

В итоге участники градосовета одобрили проект, рекомендовав решить вопрос с транспортной доступностью и местами для остановки автобусов и такси.

Текст: Татьяна Зиберова, изображения из презентации, представленной на градосовете

Нашли ошибку? Cообщить об ошибке можно, выделив ее и нажав Ctrl+Enter

[x]