На этой неделе «Недвижимость «Нового Калининграда» продолжила искать доступное жильё на побережье, перебравшись в туристическую мекку региона — Зеленоградск и его окрестности. Нишу относительно недорого жилья здесь занимают два-три строящихся ЖК. Десятки копирующих друг друга объявлений продублированы на всех популярных платформах. Ждать заветные метры недалеко от моря придётся от нескольких месяцев до пары лет. Попала в топ и вторичка, но здесь тоже есть нюанс — более чем скромный метраж. Впрочем, плита у кровати смущает не всех, к тому же можно отгородиться шторкой. Подробности — в нашем обзоре.
Цены действительны на 24 апреля 2025 года. Попадание квартиры в топ не означает, что она будет в продаже на момент прочтения материала. Также редакция не несёт ответственности за достоверность сведений, размещённых авторами объявлений на указанных сайтах.
Студия на ул. Ясной — 3,6 млн рублей










«Маленькая, уютная квартира» площадью 16,1 м² ждёт, вероятно, весьма компактного покупателя на первом этаже кирпичной трёхэтажки 2017 года постройки на ул. Ясной в районе пос. Сосновка. Жилая площадь — 8 м², кухня — 3 м², потолок — 2,7 м. «Квартира с современным ремонтом, мебелью и бытовой техникой. Во дворе — достаточное количество парковочных мест, детская площадка, прогулочные зоны, мангальная зона, ландшафтный дизайн. Милый, уютный жилой комплекс», — гласит описание. Также упоминаются совмещённый санузел, автономное отопление, магазины и кафе и остановка общественного транспорта рядом с домом и путь до центра Зеленоградска «по оборудованной пешеходной зоне».
Квартира была выставлена на продажу в декабре 2024 года за 3 980 000 рублей. С тех пор цену снижали пять раз, поднимали лишь однажды. Стоимость квадратного метра — 223 602 рубля.
Однушка в строящемся ЖК — 3 673 770 рублей








Однокомнатная квартира площадью 26,43 м² на втором этаже семиэтажки, как обещает застройщик, будет готова принять первых жильцов в III квартале 2026 года. Кирпичный дом с одним грузовым лифтом строится на ул. Лесной (пос. Вишнёвое, входит в черту Зеленоградска). Высота потолков — 2, м. Отделка — предчистовая.
Квартира была выставлена на продажу в октябре 2024 года за 3 303 750 рублей. С тех пор цену поднимали дважды. Стоимость квадратного метра — 139 000 рублей.
Цена квартир в ЖК — от 3,67 до 7,86 млн рублей. «Квадрат» — от 119 до 139 тысяч.
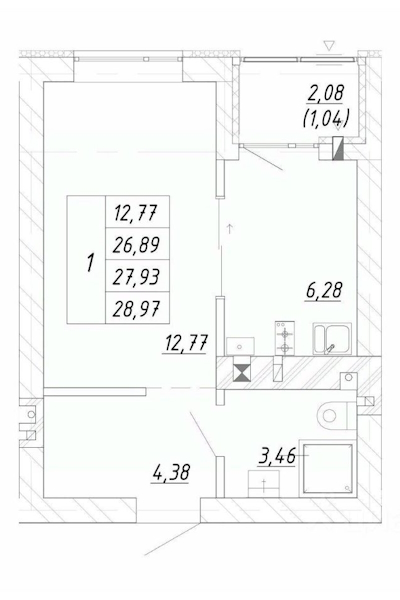
Однушка на ул. Центральной — 3 993 990 рублей









Однокомнатную квартиру площадью 27,93 м² в строящемся ЖК на ул. Центральной (в районе пос. Малиновка) будущим владельцам придётся подождать подольше. Указанный срок сдачи дома — II квартал 2027 года. Объект расположен на последнем этаже четырёхэтажки. Высота потолков — 2,7 м. Тип дома — кирпичный. Также упоминаются предчистовая отделка и один грузовой лифт. Стоимость квадратного метра — 143 000 рублей.
В настоящее время купить квартиру в этом ЖК можно за 3,99 — 7,98 млн рублей. «Квадрат» — 128 — 170 тысяч.
Однушка на ул. Глазурной — 4 823 390 рублей











Однокомнатная квартира площадью 33,73 м² продаётся на первом этаже в ещё одном строящемся ЖК эконом-класса в пос. Вишнёвое. Сдать четырёхэтажный дом планируют в IV квартале 2026 года. Тип здания — монолитно-кирпичный. Высота потолков — 2,7 м. Отделка — предчистовая. Стоимость квадратного метра — 143 000 рублей.
Диапазон цен выставленных на продажу квартир в этом ЖК — от 4,82 до 7,67 млн рублей. «Квадрат» — от 123 до 143 тысяч.
Студия на ул. Удачной — 4 990 000 рублей












Квартира площадью 25,3 м² предлагается к покупке в ЖК 2022 года постройки на ул. Удачной. Объект расположен на первом этаже кирпичной трёхэтажки. Жилая площадь — 15,3 м². Комната-кухня — 18,4 м². Холл — 3,8 м². Санузел — 3,1 м².
«В студии выполнен косметический ремонт, который, при желании, позволит вам быстро обновить пространство по своему вкусу, — рассказывает автор объявления. — Планировка квартиры задумана так, чтобы максимально использовать полезную площадь и создать атмосферу уюта. Дополнительные метры, которые предоставляют открытые пространства, позволяют свободно планировать расстановку мебели и декора. Высота потолков в 2.7 метра создает визуальное ощущение простора. Окна квартиры выходят на тихую часть двора, что обеспечивает спокойствие и уют. Вид на поле, лес и реку добавляет естественности и гармонии, позволяя наслаждаться природой в любое время суток. Это отличное место для вдохновения и отдыха».
Также обещают тёплый пол, автономное газовое отопление, совмещённый санузел с душевой, станцию глубокой очистки воды, закрытую территорию, которая «создаёт чувство уединения и безопасности» и наземную парковку, «где всегда есть место для Вашего личного авто».
На территории ЖК — всесезонный банно-бассейный комплекс, ресторан, детская площадка, зоны отдыха и барбекю, беседки. До центра города, моря, пляжа — пять минут на авто, семь минут на велосипеде и пятнадцать минут пешком.
Квартира была выставлена на продажу в феврале 2025 года за 5,1 млн рублей. В марте цену снизили на 110 тысяч. Стоимость квадратного метра — 197 233 рубля.
Текст: Игнат Родионов, фотографии с сайта avito.ru
© 2003-2026