Жилые комплексы продолжают строиться, квартиры продолжают продаваться. В последнее время девелоперы все чаще продают не только сам объект, но и атмосферу, настроение, которое они хотят донести до потенциального покупателя. Именно такие проекты представляет ГК «Инвент».
…Для узкого круга





В двух минутах от Центрального парка в респектабельном зелёном месте вблизи знаменитого кёнигсбергского района Амалиенау возводится жилой комплекс «Амалия». Этот район города в довоенное время у жителей Кенигсберга считался районом элитной застройки.
Авторский архитектурный проект реализовывается в уютной и зеленой части города на улице Марата. Исторически обусловленная малоэтажная застройка, развитая инфраструктура и близость к центру города делают строящийся комплекс, пожалуй, лучшим для проживания.
Современные архитекторы спроектировали дома с учетом сохранившейся исторической застройки. Малая высотность — три этажа и мансарда. Это позволяет найти уединенность даже в городских условиях.
Строительство ведет
Стоимость квадратного метра — от 69 000 рублей. Есть возможность покупки индивидуального парковочного места в подземном паркинге. Квартиры можно приобрести по программе «Ипотека с господдержкой» от «Сбербанка» по выгодной процентной ставке*.
С проектной декларацией можно ознакомиться на странице сайта компании
Жилой дом «Молодежный»





Застройщик компания «ИСК «Инвент» совместно с региональным центром недвижимости «Инвент» предлагают квартиры в
Современный аккуратно отделанный фасад дома — кирпичик к кирпичику, чистый подъезд, габаритный и скоростной лифт, оборудованный антиударным покрытием, а также встроенные системы противопожарной сигнализации, пожаротушения и общедомовые и поквартирные приборы учета расхода воды, электричества, отопления — все это жилой дом «Молодежный». На придомовой территории оборудованы современные спортивная и детская площадка.
Дом находится на завершающей стадии. В данный момент завершены фасадные отделочные работы. Ведутся благоустройство прилегающей территории и внутридомовые отделочные работы.
Работы идут с опережением графика. Готовится пакет документов для ввода в эксплуатацию. Предположительный срок сдачи дома июль 2015 года.
Дом расположен в непосредственной близости к
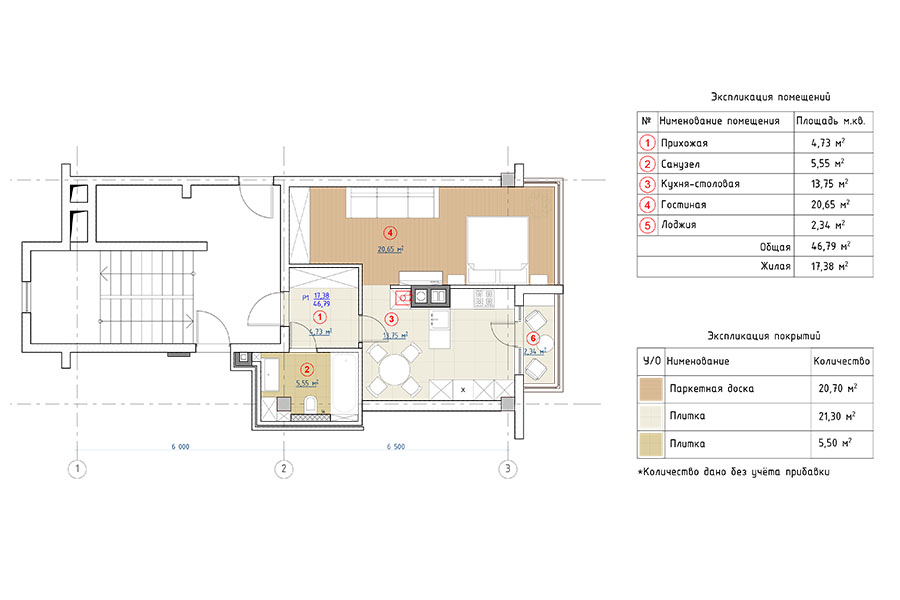
Покупателям предлагается около 35 различных планировок, включая квартиры «one bedroom» (квартиры с одной спальней) площадью от 42 до 48 кв. м. Для семей с детьми есть просторные 2- и
С проектной декларацией можно ознакомиться на странице сайта компании
* услуга предоставляется
© 2003-2026