Проект ЖК компании депутата Кухарева в Зеленоградске прошёл экспертизу

Проект ЖК компании депутата Кухарева в Зеленоградске прошёл экспертизу
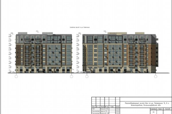
Изображение: из презентации проекта на заседании градсовета в августе 2024 года
Все новости по теме: Строительство

Проект семиэтажного жилого комплекса депутата Зеленоградского окружного совета Леонида Кухарева в Зеленоградске прошёл экспертизу. Информация об этом опубликована на сайте ГИС ЕГРЗ.

Возведение дома планируется на улице Потёмкина, 15. Застройщиком значится ООО «СЗ «Калининградстрой», проектно-сметную документацию для строительства жилого комплекса разработали две калининградские компании — ООО «Нимб-Проект» и ООО «Ундина Проект». Экспертной организацией выступило владимирское ООО «Коин-С». Положительное заключение экспертизы выдали в четверг, 19 сентября. Согласно базе данных контрагентов, генеральным директором компании «Калининградстрой» является Кухарев Леонид Юрьевич — депутат Зеленоградского окружного совета.

Жилой комплекс на улице Потёмкина в Зеленоградске спроектирован из трёх корпусов общей площадью 30 тыс. кв. метров на 307 квартир. Как сообщил представлявший проект архитектор Олег Копылов на заседании градсовета региона в августе, здания будут семиэтажными. В представленных Копыловым материалах имеется письмо от замглавы администрации Зеленоградска, где сообщается, что образовательные организации города способны принять то количество детей, которое будет проживать в комплексе.

Отметим, что проект ЖК рассматривался градсоветом весной 2023 года, был в целом одобрен, но отправлен на доработку. Правительство Калининградской области выдало компании «СК „Калининградстрой“» разрешение на строительство комплекса на земельном участке с кадастровым номера 39:05:010126:1 в мае 2024 года, оно действует до мая 2029 года.

В 2021 году зеленоградская газета «Волна» опубликовала письмо главы общественного Совета администрации округа Владимира Шегеды, в котором отмечалось, что земельный участок по ул. Потемкина, на котором ранее располагалось дорожное управление, на тот момент находился в областной собственности. Шегеда предлагал передать участок муниципалитету под строительство новой школы в Зеленоградске. Однако из правительства пришёл ответ за подписью вице-премьера Ильи Баринова, в котором говорилось, что «по информации регионального Агентства по имуществу, согласно прогнозному плану приватизации Калининградской области на 2020-2022 годы, имущественный комплекс (4 объекта недвижимого имущества и земельный участок площадью 8500 кв. м) на ул. Потёмкина, 15 в Зеленоградске подлежит внесению в уставной капитал АО „Корпорация развития Калининградской области“ в 2020-2022 годах».

Нашли ошибку? Cообщить об ошибке можно, выделив ее и нажав Ctrl+Enter

Тема в развитии




Самое читаемое:

[x]