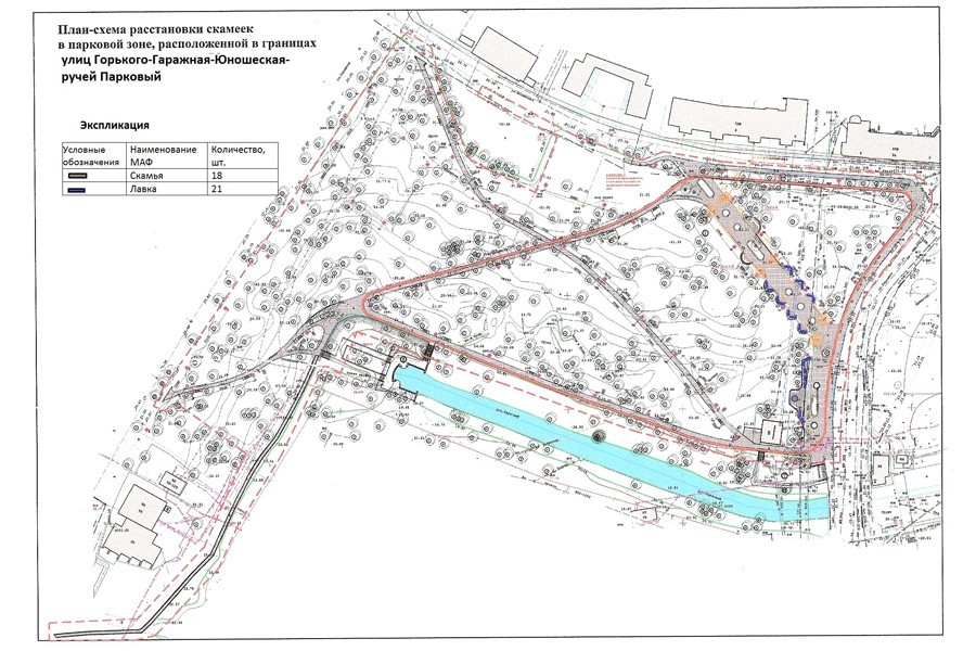
Калининградская служба заказчика готова заплатить из городского бюджета 834 тысячи 876 рублей за установку 18 скамеек и 21 лавочки в сквере на пересечении улиц Горького, Гаражной и Юношеской. Соответствующий аукцион размещен на портале госзакупок.
Согласно техническому заданию, скамейки должны быть покрыты «двухкомпонентным полиуретановым несамовозгораемым покрытием, стойким к сложным погодным условиям, истиранию, действию ультрафиолета и влаги».
Также все деревянные поверхности планируется обработать антисептиком, защищающим древесину от плесени, дереворазрушающих грибов, грибов синевы и грибов гнили, древесных вредителей и насекомых, а также вредного воздействия окружающей среды.
Согласно проекту контракта, установка должна быть завершена 20 сентября 2013 года.
Напомним, ранее вандалы повредили в сквере некоторые свежеустановленные урны и фонари.

Схема — из техзадания
Нашли ошибку? Cообщить об ошибке можно, выделив ее и нажав
Ctrl+Enter
© 2003-2026