Областной градсовет отказался поддержать концепцию благоустройства на Октябрьском острове, представленную на суд архитекторов представителем компании Геннадия Тимченко «Стройтрансгаз». Проект эксперты обсуждали около двух часов и, в конце концов, назвав его сырым, отправили на доработку. Что не устроило совет, и почему благоустройство назвали «не выдерживающим критики» — в материале «Нового Калининграда».
«Согласуете сегодня»
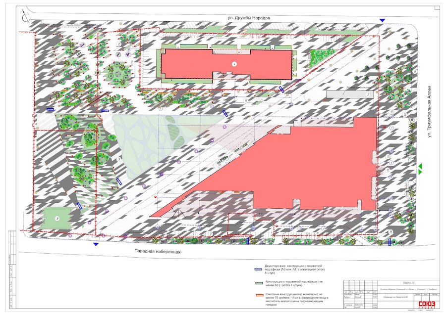
Проект был выставлен на повторное обсуждение. Еще в феврале этого года (тогда свои идеи на этот счет представляла группа компаний «Горка») его уже критиковали за нелогичные размещение парковок и организацию подъезда общественного транспорта, структуру озеленения и общее устройство парковой зоны, размещенной между Парадной набережной, улицей Дружбы Народов, филиалом Третьяковской галереи и театром оперы и балета.
По словам начальника производственно-технического управления АО «Стройтрансгаз» Сергея Кривенцова, все замечания были устранены. Например, это касается парковок и озеленения; также проектировщики максимально расширили пешеходную зону.
«Пока что мы принимаем эту концепцию как конечную и надеемся, что вы нам согласуете ее сегодня», — объявил он, чем, судя по всему, уже настроил против себя членов совета. «Если мы оперативно согласуем предложенный план, то успеем в этом году закупить и посадить деревья шести-восьми лет, посмотреть, как это будет смотреться в перспективе музея. Для того чтобы дать отмашку для досрочных процедур по зелёным насаждениям, нужен согласованный с вашей стороны совмещённый план благоустройства», — обратился Кривенцов к архитекторам.
Дожидаться конца обсуждения он не стал, и поэтому не смог увидеть, как разносят проект. Отдуваться за Кривенцова пришлось главе градосовета главному архитектору области Евгению Костромину, который пытался поддержать представителя «Стройтрансгаз» с самого начала.
Родитель № 1, родитель № 2 и родитель № 3
Проблемы начались практически сразу после презентации. Члены комиссии сперва решили выяснить, есть ли у концепции архитектор. «Я, наверное, отвечу вам на вопрос, — откликнулся Костромин. — Когда мы выдали рекомендации после нашей рабочей группы, и передали их в работу, длительное время не было ответа. Мы запросили исходные данные у разработчиков и получили их только в плоском виде. В итоге, мы пришли к такому мнению, что все-таки графические рекомендации в виде представленных визуализаций лучше, наверное, подготовить нам».








Главный архитектор области пояснил, что проектом занималось правительство региона и что оно подготовило концепцию в сжатые сроки. И добавило, что готов отвечать лишь на вопросы по визуальной графике, а остальное стоит адресовать фонду «Национальное культурное наследие», являющемуся заказчиком театра и галереи. «У нас какие-то родитель № 1, родитель № 2 и родитель № 3, — возмутился архитектор Олег Копылов. — А есть вообще у проекта архитектор? Кто это вообще?». Евгений Костромин ответил, что концепцией занималась проектная организация «Горка». «Мы знаем, что здание музея и школ нам подарил „Меганом“. [Юрий] Григорян архитектор. И знаем, что концепцию театра подарила нам Snøhetta», — сказал он, но запутал всех еще больше.
Копылов решил напомнить, что к проектировщикам площади ранее было три основных замечания: отсутствует структура и чёткая транспортно-пешеходная схема, не продумана доступность парковки и нет привязки к набережной реки Преголи. Ни над одним из этих вопросов, по мнению Копылова, так и не поработали.
Остальные члены совета поддержали своего коллегу и продолжили критиковать концепцию площади.
Архитектор Петр Черненко отметил, что в представленном парке невозможно обнаружить транзитной аллеи, а по диагонали, идущей мимо фасада театра, невозможно понять, кем она будет использоваться, пешеходами или автомобилистами.
Главный архитектор Калининграда Андрей Анисимов поддержал коллег, так как тоже не смог разобраться в зонировании и транспортной структуре проекта.
«Мы видим дизайн-проект, который очень сильно смущает с точки зрения понимания баланса территории. Вот эти все пиксели... Все сливается. Где пиксель плиточный, а где зелень?» — поинтересовался он.
Анисимов попытался прояснить вопрос с транспортом. Дело в том, что проектировщики предложил сузить проезжую часть Парадной набережной с четырех полос до трех. «Мы против того, чтобы сейчас, на стадии концептуального проектирования, без расчетов и транспортного моделирования выходить на занятие парковочными местами в том числе зелеными насаждениями улично-дорожной сети», — сообщил он.
Но вопросы у совета возникли и к размещению на «пиксельном пространстве» малых архитектурных форм, опор освещения, велопарковок, урн, прочих элементов. Как рассказал на это Костромин, проектом предусмотрено полторы тысячи велопарковок. Но сам этому количеству удивился. «Вы представляете лес парковочных штырей для велосипедов! — заявил главный областной архитектор. — Пока так заложено. Но это все — дальнейший рабочий процесс. Я пока предлагаю не углубляться в детальное рассмотрение фонариков и всего остального, а обсудить принципиальные решения. Если мы это принимаем, то дальше отдаем в работу».
«Я не вижу ничего»
Однако с принципиальными решениями вышла проблема, потому что архитекторы так и не поняли, что именно обсуждать. «Я хочу сказать, что это самое длинное обсуждение в моей жизни, — отреагировал на призыв советник губернатора по архитектуре Вячеслав Генне. — В конце уже не понимаю, какие решения мы должны принимать: то ли благоустройство, то ли транспорт. Слушаю город — они вообще категорически против. Глядя на картинку, понимаю, что это в будущем одна из главных площадей Калининграда. Формат градсовета не позволяет нам вникнуть в это все».







Генне отметил, что в презентации недостаточно материалов, а обсуждать благоустройство без решения транспортных проблем и транзита, по его мнению, бессмысленно.«Выдернута из контекста территория, а мы смотрим на пиксели эти. Очень странно все это. Поймите, если объект сдастся в эксплуатацию с нашим участием, потом город всё это будет переделывать под свои нормы, стандарты и требования уборки. Мы маленькие кусочки каких-то незначительных улиц обсуждаем и понимаем в конце, что да — не зря 10 раз собрались, не зря выехали три раза на место, а здесь мы дистанционно решаем судьбу, рассматривая благоустройство центральной площади острова Октябрьского. Я не хочу к этому никакого отношения иметь», — заявил архитектор. Генне предложил создать рабочую группу и для начала обсудить с представителями мэрии принципиальные вопросы, а уже потом перейти к обсуждению благоустройства.
И тут Олег Копылов, пересматривая эскизы, внезапно предложил свои услуги по проектированию этой площади. Он даже согласился сделать несколько концепций — но сначала раскритиковал представленную. «Это городская площадь, которая связывает три крупных объекта, — завил он. — Но я смотрю на площадь и понимаю, что это не площадь. Это парк, какая-то желтая диагональная клумба. Овес или пшеница там растет, я не понимаю. Площади нет, ее реально как бы растворили всю. Она может быть любой: круглой, квадратной, треугольной, шестигранной, но это место встреч людей, а здесь нет такого пространства. Есть диагональная связь мощная, которая у „Снохетты“ была закреплена треугольным бассейном. Мы сейчас взяли, развинтили часть решения авторов театра, решили без них взять и убрать этот бассейн».
Копылов повторил, что не отказывается от своих слов, и готов все спроектировать хоть через неделю, но тут расчехлил орудия его коллега Олег Васютин. Он сообщил, что представленных материалов ему не хватило, и поэтому решил остановиться на ландшафте: «Мы сюда пришли с очень качественной архитектурой. К этому архитектурному качеству нужен соответствующий ландшафт. Второе: нет никакой идеи по набережной. Она просто сама по себе. Понятно, что весь комплекс тяготеет к воде. Мы не можем работать одним лоскутным одеялом». Далее архитектора привлекли бессистемно разбросанные по площади деревья. «Настолько это все бедно! — заявил он. — Ну замените эти деревья на кустарник! Освободите этот визуальный диалог между театром и музеем. Полихромия же! Пространство огромное, а свет отсутствует. Здесь не хватает идеи. Кроме пиксельного ковра и треугольника из трав я не вижу ничего. Остальное не выдерживает никакой критики».
«Я думаю, всем всё ясно, — забил последний гвоздь в проект архитектор Сергей Гулевский. — Смотрите, что получается: мы уже собирались с исполнителем и высказывали ряд замечаний. Проходит примерно полгода, и нам привозят практически то же самое». По его словам, проектировщики представили только картинки с визуализацией, и больше ничего не сделали. Зеленую зону за театром архитектор и вовсе назвал лесопосадкой. «Я считаю, что предмета обсуждения нет. Есть какая-то картинка. Структуры не чувствуется. И нам говорят: вы нам должны согласовать, потому что мы уже хотим сажать восьмилетние деревья. Ну что это за постановка вопроса? Мне кажется, мера ответственности перед этим местом и тот материал, который представлен... Можно градсовет к этому не привлекать. Город, область могут создать какую-то рабочую группу и там внутри что-то обсуждать. Я считаю, что сейчас материал настолько сырой, что говорить о каком-то согласовании конечном просто недопустимо», — добавил Гулевский.
Остальные члены совета согласились с предыдущими ораторами и единогласно отклонили проект, отправив его на доработку. Поддержал коллег и Евгений Костромин, которому, судя по всему, было очень неловко занимать сторону проектировщиков.
«Выработаем рекомендации, получим обратную связь. Можем углубиться в лавки и фонарики, но нужно в первую очередь определить принципиальную схему функционирования и доступности этого пространства с городской материей», — резюмировал он.
Текст: Иван Марков / Новый Калининград, фото предоставлены градостроительным советом Калининградской области
Нашли ошибку? Cообщить об ошибке можно, выделив ее и нажав
Ctrl+Enter
© 2003-2026