Градсовет одобрил техническую надстройку на музее русской живописи Рустама Алиева

Градсовет одобрил техническую надстройку на музее русской живописи Рустама Алиева Градсовет одобрил техническую надстройку на музее русской живописи Рустама Алиева
Все новости по теме: Рыбная деревня-2

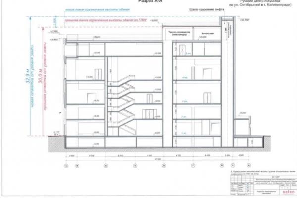
Градостроительный совет Калининградской области одобрил изменение параметров «Музея русской живописи и прикладного искусства» на территории у «Рыбной деревни-2». Как пояснил главный архитектор региона Евгений Костромин, речь идёт о частичном увеличении высоты здания из-за технических помещений. В частности, здание станет выше на 2,9 метра из-за размещения на крыше котельной и шахты грузового лифта.

«На него уже получено в 2019 году разрешение на строительство, это культурно-досуговый центр, Музей русской живописи и прикладного искусства, реализация которого уже активно ведется. <...> В процессе реализации возникли некие технические моменты, которые повлияли на параметры объекта. Связаны эти моменты в основном с отклонениями, которые требуют повторного получения разрешения на строительство», — сказал Костромин, добавив, что, так как здание теперь превышает 30 метров в высоту, для обсуждения нового решения необходимо привлекать градосовет, что, по мнению архитектора, является формальностью.

«Прошлые проектные решения вписывались в 30 метров, предложенным решением технические помещения для обеспечения движения грузового лифта и размещения инженерных сооружений на данный момент в проекте превысили на 2,9 метра. Я предлагаю, если нет возражений, этот вопрос поддержать, поскольку культурно-досуговый центр, музей русской живописи и прикладного искусства у нас появляется не каждый день», — отметил он. Остальные участники совета не стали возражать.

Музей русской живописи на территории «Рыбной деревни-2» строит генеральный директор АО «Молоко», коллекционер Рустам Алиев. Стоимость строительства бизнесмен оценивает в 1,5 млрд рублей. Разрешение на строительство выдано в декабре 2020 года и действует до октября 2022 года.

Скриншоты презентации с градостроительного совета

Нашли ошибку? Cообщить об ошибке можно, выделив ее и нажав Ctrl+Enter

Самое читаемое:

[x]