В марте врио губернатора Калининградской области Антон Алиханов подписал постановление, согласно которому региональные власти получили от мэрии квартиру в элитном жилом комплексе Karlshof в центре Калининграда на ул. Сержанта Колоскова, 8. Источники утверждали, что жилье предназначается самому Алиханову, однако он эту версию отрицал. «Новый Калининград.Ru» выяснил новые подробности в истории с элитной квартирой.
Почти как Алишер и Дмитрий
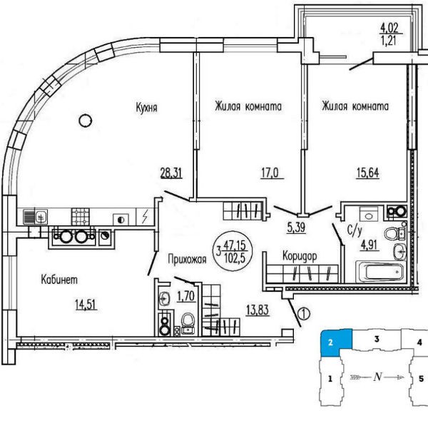
Трехкомнатная квартира площадью 102 кв. метра с просторной кухней, кабинетом и двумя санузлами на
«Большинство квартир имеет панорамное остекление и подогрев полов в коридорах и санузлах, — отмечают риелторы. — Обслуживанием жилого комплекса занимается собственная управляющая компания, которая помимо прочего предлагает жильцам услуги службы уборки с прачечной и химчисткой, обязанности горничных».
Источники «Нового Калининграда.Ru» утверждали, что квартира предназначалась самому врио губернатора. Однако
Во вторник после заседания правительства Калининградской области Антон Алиханов сказал, что квартира будет служебной. Но кто в ней будет жить, непонятно. «Пока решаем, кому она будет предназначена», — рассказал врио губернатора. Он также подтвердил информацию о том, что «элитку» на Колоскова правительство выменяло у мэрии на некое жилье на
Примерная планировка квартиры, фото kaliningradstroyinvest.ru
Между тем «Новый Калининград.Ru», разбираясь в этой истории, увидел в ней некое сходство со скандалом вокруг усадьбы, подаренной миллиардером Алишером Усмановым благотворительному Фонду поддержки социально значимых проектов, который Фонд борьбы с коррупцией* Алексея Навального связал с
Многоходовка
Правительство Калининградской области получило элитную квартиру на Колоскова в результате многоходовой операции. Дело в том, что сначала жилье принадлежало застройщику, но тот передал его городским властям в обмен на «трешку» меньшего размера практически на отшибе, в микрорайоне Сельма около последнего кольца, ведущего к Окружной дороге.
Элитный комплекс на ул. Колоскова возводила компания «Калининградстройинвест», руководителем которой ранее был зампредседателя горсовета Калининграда Валерий Макаров. Комплекс был сдан в 2015 году, и с момента ввода дома в эксплуатацию собственником квартиры являлась дочерняя фирма застройщика «Отделстройсервис». Однако 12 декабря 2016 года право собственности на квартиру зарегистрировало «Муниципальное образование город Калининград» на основании договора мены №
Расположение дома на ул. Колоскова, maps.google.ru
В ответе на информационный запрос «Нового Калининграда.Ru» замглавы администрации Калининграда Александр Зуев сообщил, что квартиру на Колоскова мэрия получила «в обмен на равнозначное по количеству комнат жилое помещение, расположенное в Ленинградском районе Калининграда, находящееся в казне городского округа „Город Калининград“». В ответе на запрос также отмечалось, что жилье, на которое была выменяна у застройщика квартира на Колоскова, «не было включено в состав социального жилищного фонда», и что «жилое помещение приобреталось с целью пополнения жилищного фонда, расположенного на территории Центрального района города». Также в документе было сказано, что квартира была передана областному правительству безвозмездно на основании решения горсовета Калининграда. Других подробностей администрация не указала. Выяснилось, что текст решения горсовета не был опубликован ни на сайте самого Совета депутатов, ни в газете «Гражданин».
На повторный запрос «Нового Калининграда.Ru» администрация Калининграда раскрыла наконец тайну «равнозначного по количеству комнат жилого помещения в Ленинградском районе», которое дочерняя фирма «Калининградстройинвеста» получила в обмен на квартиру на Колоскова. «Ранее находящееся в муниципальной собственности жилое помещение располагалось в Ленинградском районе г. Калининграда по ул. Генерала Челнокова, 52, общей площадью 80,8 кв. метров. Данное помещение было учтено в казне стоимостью 5,5 млн рублей», — говорилось в ответе Александра Зуева.
Кстати, есть в этой истории еще один любопытный нюанс. Как уже говорилось, квартира на Сельме входила в так называемый жилищный фонд. По словам
Дом по ул. Генерала Челнокова, 52, располагается на отшибе микрорайоне «Сельма» на перекрестке с ул. Елизаветинской, недалеко от ДС «Янтарный» и Окружной дороги.
Кадастровая стоимость квартиры — 3,12 млн рублей. По данным риелторов, в доме — центральное отопление. «Трешка» площадью 86 кв. метров на ул. Челнокова, 52, выставлена на продажу за 5,4 млн рублей. Правда, со всей мебелью и техникой.
Расположение дома на ул. Челнокова, maps.google.ru
Сложно назвать равноценным обмен квартиры площадью 102 кв. метра в элитном жилом комплексе в центре города на жилье меньшей площади на Сельме. Рыночная стоимость этих квартир, по данным риелторских агентств, отличается в два раза. Кадастровая стоимость квартиры на Колоскова выше кадастровой стоимости квартиры на Челнокова в 1,7 раза.
Возникает вопрос — зачем застройщик пошел на явно неравноценный обмен? И не является ли такая сделка прикрытой взяткой городским властям?
Зампредседателя горсовета Калининграда Валерий Макаров, фотография которого была размещена на сайте комплекса Karlshof, как главы «Калининградстройинвеста», рассказал, что уже не является директором компании, но прокомментировать ситуацию согласился. По его словам, обмен производился на основе оценки обеих квартир, который делала независимая оценочная компания.
На вопрос о том, зачем дочерней фирме застройщика понадобилась квартира на Сельме, Валерий Макаров сообщил: «У мэрии есть
Отметим, что слова Валерия Макарова об оценке квартир подтверждает и мэрия — по её данным, балансовая стоимость жилья на Сельме и Колоскова оказалось равнозначной — по 5,5 млн рублей.
Был ли обмен
Еще один любопытный вопрос: на каких основаниях квартира перешла от мэрии областному правительству. Администрация города в первом ответе на запрос «Нового Калининграда.Ru» сообщила, что передача жилья в собственность региона произошла на основании решения горсовета Калининграда от 26 декабря № 443. Однако на сайте Совета депутатов этого документа не оказалось. Редакции его предоставили в приемной депутата горсовета от КПРФ Игоря Плешкова.
В тексте пояснительной записки, подписанной замглавы администрации Александром Зуевым, говорится, что в городскую администрацию обратилось само правительство региона с ходатайством «о рассмотрении возможности передачи в собственность Калининградской области двух трёхкомнатных квартир, расположенных в Центральном районе Калининграда, с целью последующего их предоставления в качестве служебных работникам правительства, нуждающимся в жилых помещениях». В свою очередь, отмечалось в пояснительной записке, правительство Калининградской области готово передать в собственность муниципалитета две трёхкомнатные квартиры в Московском районе Калининграда.
«Администрацией городского округа подобрано соответствующее требованиям жилое помещение — квартира № NN дома № 8 по ул. Сержанта Колоскова. Право собственности на указанное жилое помещение зарегистрировано в Управлении Федеральной службы государственной регистрации, кадастра и картографии по Калининградской области
«Указанное помещение подлежит передаче в собственность Калининградской области, — говорится в пояснительной записке. — Правительство, в свою очередь, осуществляет передачу в муниципальную собственность двух квартир на ул. Левитана в Калининграде». Однако в окончательном решении горсовета говорится только о том, что мэрия передает квартиру правительству. И ни слова о том, что получит

Пояснительная записка к проекту решения горсовета №443 от 26 декабря 2016 года
История с элитной квартирой на ул. Колоскова, которая предназначена (если верить мэрским документам) неким нуждающимся в жилье сотрудникам правительства, выявила много любопытного.
И последнее — кто будет жить в новой квартире? И почему власти отдают хорошее жилье в центре Калининграда под нужды чиновников, а аварийщиков переселяют на окраины — как это планируется сделать в случае с жителями «падающего» дома на Московском проспекте, про которых мэр Александр Ярошук сказал: «Понятно, что всем хочется в центре жить. Но не получается в этой жизни так».
* Некоммерческая организация «Фонд борьбы с коррупцией» (решение Московского городского суда от 09.06.2021) (дата размещения сведений: 06.08.2021); — Организация внесена Минюстом в перечень общественных объединений и религиозных организаций в отношении которых судом принято вступившее в законную силу решение о ликвидации или запрете деятельности по основаниям, предусмотренным Федеральным законом от 25.07.2002 № 114-ФЗ «О противодействии экстремистской деятельности».
© 2003-2026