Мэрия Калининграда передала в собственность правительства Калининградской области квартиру в элитном многоквартирном жилом доме Karlshof на ул. Сержанта Колоскова, 8. на территории бывшей калининградской ВДНХ. Постановление о перечне имущества опубликовано на официальном интернет-портале правовой информации. Документ 9 марта подписал врио губернатора региона Антон Алиханов.
Алиханов поручил главе агентства по имуществу Наталье Кузнецовой подписать передаточный акт «в установленном законодательством РФ порядке». «Право собственности Калининградской области на имущество возникает со дня подписания передаточного акта», — отмечается в постановлении.
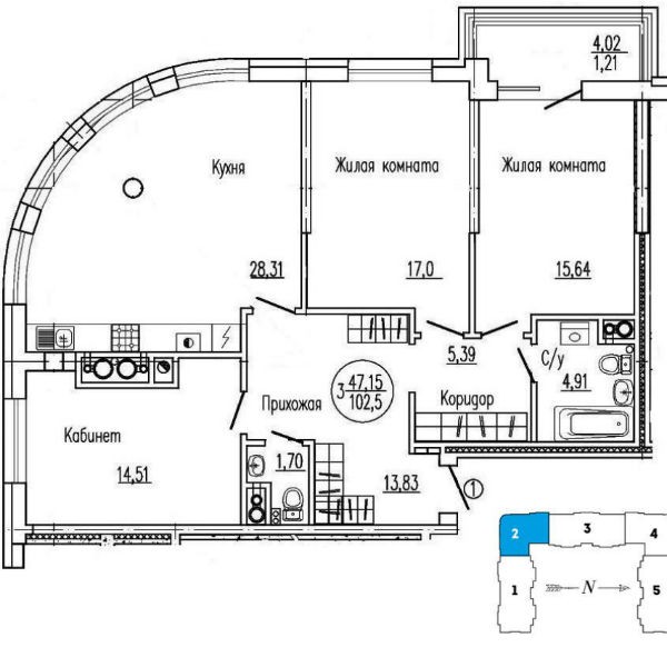
По данным Росреестра, квартира площадью 102 квадратных метра располагается на 12-м этаже элитного комплекса, возведенного застройщиком «Калининградстройинвест», (руководителем компании является зампредседателя горсовета Калининграда Валерий Макаров). Ранее собственником являлась дочерняя фирма застройщика «Отделстройсервис». 12 декабря 2016 года право собственности на квартиру зарегистрировало «Муниципальное образование город Калининград». Основание — договор мены № б/н от 02.12.2016. Балансовая стоимость жилья — 5,5 млн рублей. При этом на сайте застройщика квартиры с подобным метражом выставлены на продажу по 10 млн рублей. Квартиры площадью 102 кв. метра имеют по два санузла, просторную прихожую, две комнаты площадью 17 и 15,6 кв. метров, кабинет площадью 14,5 кв. метров, кухню площадью 28,3 кв. метра.
«Большинство квартир имеет панорамное остекление и подогрев полов в коридорах и санузлах», — отмечается на сайте застройщика. Риелторы отмечают, что «обслуживанием жилого комплекса занимается собственная управляющая компания, которая помимо прочего предлагает жильцам услуги службы уборки с прачечной и химчисткой, обязанности горничных».

Примерная планировка квартиры, фото kaliningradstroyinvest.ru
Как сообщили корреспонденту «Нового Калининграда.Ru» источники в правительстве региона, квартира предназначается для врио губернатора Антона Алиханова. Однако пресс-секретарь врио губернатора Валерия Родина эту информацию опровергла. Она заверила, что Антон Алиханов по-прежнему живет в служебной квартире на ул. Аллея Смелых и переселяться не планирует. Отметим, ранее врио губернатора рассказывал, что получил служебное жилье в 2015 году, когда переехал в Калининград из Москвы и занял пост вице-премьера в правительстве экс-губернатора Николая Цуканова.
22 служебные квартиры в доме на Аллее Смелых, 91, в 2011 году продала правительству области компания экс-депутата облдумы Ивана Грибова «Даль-Балтикстрой». Сумма сделки составила 58,9 млн рублей. За 1 квадратный метр жилья, готового к заселению, бюджет отдал более 40 тыс рублей, трехкомнатная квартира оценивалась в 2,85 млн рублей. Жилой комплекс по ул. Аллея Смелых, 91, располагается в районе перекрестка с ул. Муромской, недалеко от средней школы № 15. Правительство области экс-губернатора Николая Цуканова утверждало, что покупает эти служебные квартиры за счет областного бюджета для коллектива ученых БФУ им. И. Канта, которые переехали в Калининградскую область из Сибири.
«Новый Калининград.Ru» направил запросы в мэрию Калининграда и агентство по имуществу с предложением предоставить официальную информацию о том, на каких условиях власти города получили квартиру на ул. Колоскова в собственность, передали ее правительству области, и кому предназначается элитное жилье.