



Областной архитектурно-градостроительный совет одобрил концепцию строительства комплекса 10-этажных домов на окраине Московского района в Калининграде. Презентация архитектурного проекта прошла в четверг, 25 марта.
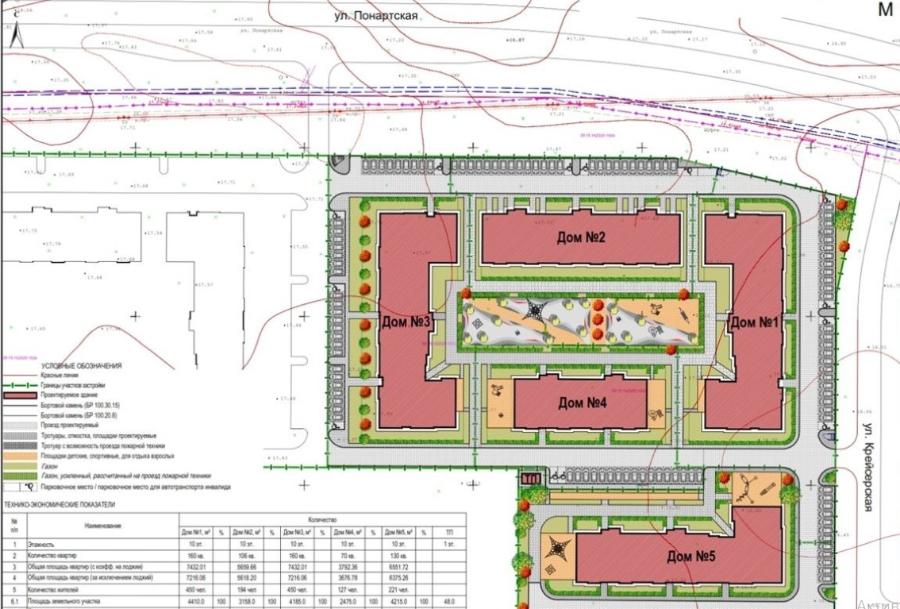
Проект предусматривает строительство пяти жилых домов на пустыре в районе новых улиц Понартской, Флагманской и Крейсерской. Основное парковочное пространство должно располагаться по внешнему периметру зданий. Во дворах предусмотрено благоустройство.
«Архитектура фасадов лаконичная, выразительно отображает внутреннюю структуру и назначения зданий, не диссонирует с окружающей средой и застройкой и рассчитана на восприятие как с близкого расстояния, так и с любой точки, открывающегося перед зданием пространства. Для оформления фасадов предусмотрены традиционные отделочные материалы», — рассказала представитель проектной компаний.
Отметим, Генеральный план и проект планировки предусматривает дальнейшую застройку этого района многоэтажными жилыми домами до Окружной дороги.
© 2003-2026